Mauerabdeckungen und Mauerverkleidungen
für verputzte Mauern, Sichtbeton, Holzbrüstungen und Klinker. Die Montage erfolgt durch einfaches Aufklemmen auf vorher verschraubte Halterungsbügel aus Rillen- oder Flachprofil. Abstand der Halterungen 60 - 70 cm. Siehe auch unsere Bildersammlung am Ende der Seite.
Attika-Abdeckung
für Mauern und Brüstungen, mit Halterungen aus Rillen- oder Flachprofil.


Pfeilerverkleidung
wird einfach durch Verschrauben am Blendrahmen montiert.


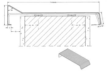
Attika-Abdeckung
nach Zeichnung gekantet in Längen bis 3000 mm.
Die Montage erfolgt duch einfaches Aufklemmen auf vorher verschraubte Klemmhalter.

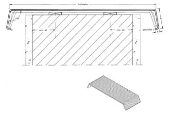
Brüstungs-Abdeckung
nach Zeichnung gekantet in Längen bis 3000 mm.
Die Montage erfolgt duch einfaches Aufklemmen auf vorher verschraubte Klemmhalter.
























